热线电话 18238881583 / 注册

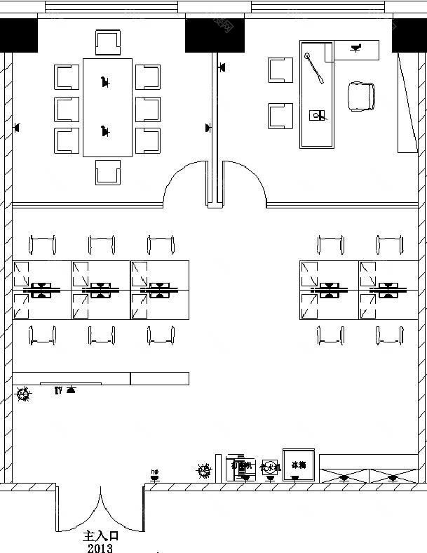
众秀大厦 2隔间1办公区 212.23㎡ 28000元,办公写字楼出租

租客免佣 VR房源 视频房源 有电梯
28000 元/月 4.33元/㎡/天
关注
询底价
  • 212 平米
    建筑面积
  • 10-12人
    容纳人数
  • 精装修
    装修情况

  • 韩春生
    韩春生 驻场经理
    13121241942
    在线聊
    预约看房
房源信息
基础信息
  • 房源编号
  • 使 用 率
  • 朝  向
  • 电 梯 口
  • 结  构
  • 所在楼层
  • 注册公司
  • 电梯数量
相关费用
  • 物业费用
  • 空调费
  • 停车费用
租赁信息
  • 免 租 期
  • 押付方式
  • 最短租期

推荐顾问

  • 韩嘉琪 销售总监
    18513044122
  • 李宏扬 销售总监
    13121244679
  • 余军 招商经理
    13121244860
  • 韩春生 驻场经理
    13121241942

房源描述

众秀大厦 2隔间1办公区 便宜出租

所属大厦

  • 大厦名称
  • 大厦均价
  • 地址位置
  • 物业公司
  • 物业费用
  • 停车信息
在线聊天